 
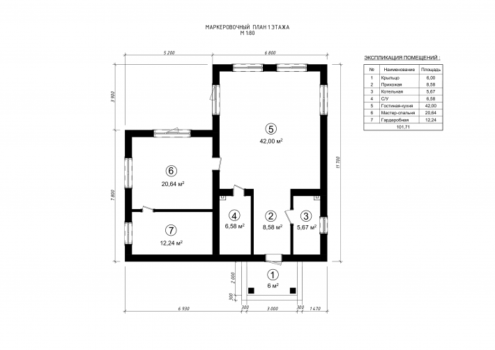
                                Здание представляет собой одноэтажный жилой дом. В доме запроектированы крыльцо, прихожая, кухня-гостинная, котельная, санузел, мастер-спальня,гардеробная. Кровля дома - плоская, не эксплуатируемая. Фундамент монолитная ж/б плита.
Выбор местоположения
Мы свяжемся с Вами в течение дня.